• darkblurbg
  • darkblurbg
  • darkblurbg
  • darkblurbg

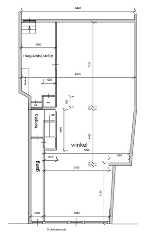
Sint Adriaanstraat 17 te Goes

Te huur. Winkelruimte van ca. 123m² incl. een pantry/magazijn van ca. 19m². Huurprijs: in overleg. Opleveringsniveau is bespreekbaar.